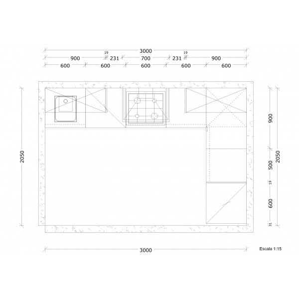
Cocina en L Estándar Mate
Diseño para amueblar una cocina en L con paredes aprox de 3 x 2.1 metros, colocamos un mueble de fregadero y otro para la placa y el horno, en otro de los muebles introducimos un cajón para cubertería y no puede faltar el mueble de rincón para aprovechar al máximo ese espacio. En la zona alta tendrá su protagonismo un campana decorativa.




















