Cocina Lineal Grande Mate
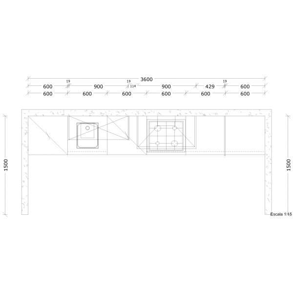
Diseño pensado para una pared de 3.62 m aprox. donde colocamos el horno y el microondas en una semicolumna con 1 gaveta, lo que da mayor comodidad al acceso de éstos electrodomésticos.
Bajo la placa tenemos un mueble con 1 cajón para la cubertería y 2 prácticas gavetas.




















